Proyecto IZ Portugalete

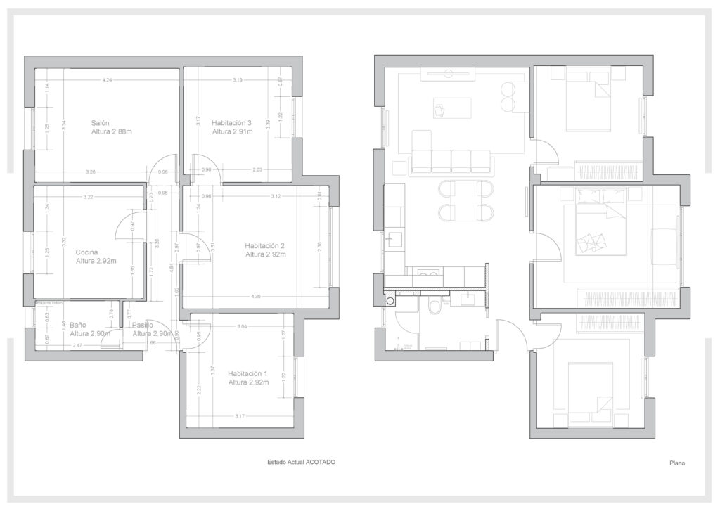
Proyecto de distribución en Portugalete, una vivienda muy antigua abarrotada de trastos que no dejaban ver el potencial de la vivienda. Se sumaba a ello una distribución con cocina y salón separados y un baño estrecho en forma de tubo.

La vivienda de base tiene muy buenas características, buena iluminación y el baño dispone de ventana de buen tamaño.

El propietario tiene como primer propósito abrir la zona de día, juntando cocina y salón, haciendo una zona amplia que de sensación de amplitud al entrar en la vivienda. Y junto a ello ampliar el baño, ya que en estos momentos es algo estrecho.

Tras varias opciones presentadas, ya que la vivienda daba la oportunidad de jugar en la distribución, la seleccionada fue esta y os presentamos el fin de obra. Un baño amplio y luminoso, que mezcla baldosa efecto mármol con gris en paredes y suelo, y donde la madera del mueble aporta la calidez necesaria. En el suelo del resto de la vivienda se instala una baldosa efecto madera, que aporta calidez pero a la vez la dureza y durabilidad necesaria. La cocina, al ser un espacio amplio, abierto y luminoso permite el uso de materiales mas oscuros, como la madera o la encima de mármol con toques negros.