
Proyecto de nueva distribución e iluminación en una vivienda de Portugalete.
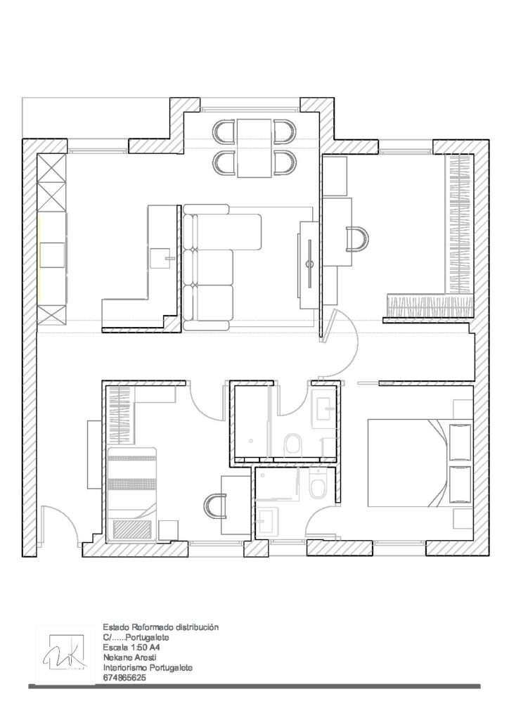
La vivienda contaba con espacios cerrados, con acceso desde un pasillo largo y en forma de L.
Se busca abrir la zona de día hacia el pasillo comunicando cocina y salón mediante un muro a media altura, que creara la trasera del sofá. Esto aporta la capacidad de trabajar en parte de la cocina disfrutando de una zona amplia y luminosa enfocada hacia la televisión.
Respetando los huecos de tres habitaciones, crearemos una gran habitación principal con vestidor haciendo uso de dos antiguas habitaciones, y dejaremos otra habitación mas en la vivienda.
Aprovechando toda la reforma, lograremos sacar del baño actual otro baño que da servicio a la habitación principal.